Į BAZINĘ KAINĄ NEĮSKAIČIUOTA:
- Garažo vartai
- Grindys
- Pasirinktos stogo dangos įrengimas
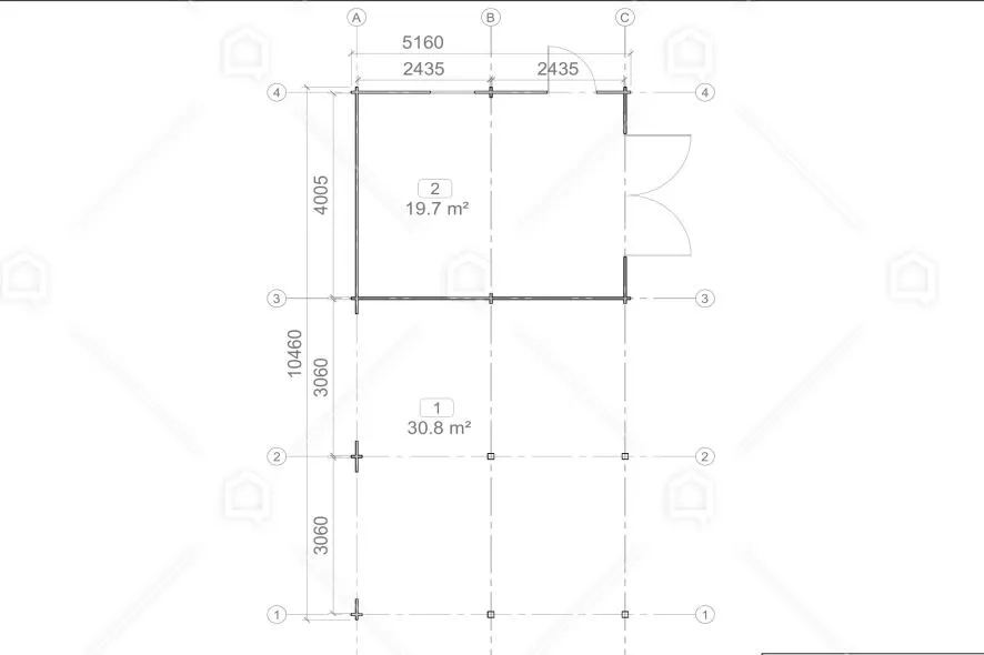
„BASALT“ – tai estetiškas ir funkcionalus garažas tiems, kurie nori saugiai bei patogiai laikyti daugiau nei vieną transporto priemonę. 53,97 m² ploto medinė konstrukcija turi uždarą patalpą, kurioje telpa vienas automobilis, ir pastogę, kurioje galima laikyti dar dvi transporto priemones.
Šio garažo išvaizda gan tradicinė, stogas dvišlaitis. Vieną pastogės pusę dengia sienelė su tarpais kuri kiek sumažina atviros erdvės pojūtį ir suteikia šiek tiek daugiau privatumo, tačiau neužblokuoja patenkančios natūralios šviesos. Norint daugiau uždarumo, sienelę galima apželdinti vijokliniais augalais.
Medinis garažas „BASALT“ yra tinkamas pasirinkimas mėgstantiems meistrauti. Šalia sienų uždaroje patalpoje lengvai tilps lentynos, kuriose galima laikyti įvairius darbo įrankius, sodo priemones ir kitus daiktus. Ši didelė pastogė taip pat gali būti pritaikyta įvairiems kitiems poreikiams, o patekimą į patalpą palengvina šone esančios papildomos durys. Į garažo kainą įskaičiuotos „Special Silver Line“ durys su apsaugine spyna bei tos pačios klasės langas, užtikrinantis, kad natūrali šviesa pateks į uždarą garažo erdvę.
Siekiant geriausių rezultatų, rekomenduojame mūsų gamybos medinius vartus, kuriuos galima įsigyti atskirai.
Medinis garažas „BASALT“, kaip ir kiti mūsų projektuojami ir statomi maži mediniai statiniai, gali būti modifikuojamas ir pritaikomas atsižvelgiant į individualius kliento poreikius. Pasidalinkite savo idėjomis, o mes padėsime jas įgyvendinti.
Visos internetinėje svetainėje pateiktos projektų vizualizacijos ir jose naudojami namo atributai yra skirti išskirtinai komerciniams tikslams ir neturėtų būti interpretuojami kaip galutinis ir neginčytinas projekto įgyvendinimo pavyzdys.










